Myszków

Dom na sprzedaż

Opis nieruchomości

Oferta sprzedaży domu w bardzo dobrej lokalizacji w Myszkowie.

Duża działka o ładnej szerokości ok. 32 m. o powierzchni 2418 mkw. częściowo zagospodarowana, ogrodzona. Położona przy spokojnej ulicy wśród zabudowy domów jednorodzinnych. 

Dom w stanie surowym, zamkniętym o powierzchni całkowitej 388 mkw. - użytkowej 285 mkw. Budynek wykonano z cegły i pustaków ceramicznych. Dach pokryto w 2020 r. wysoko gatunkową dachówką ceramiczną i zamontowano również wysokiej klasy okna  marki Salamander.

Do budynku przyłączono: prąd, wodę i gaz.
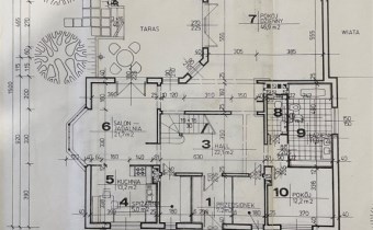
Dom ma trzy kondygnacje: piwnicę, parter i użytkowe poddasze.
Na parterze zaplanowano na otwartym planie:

- salon z wyjściem na taras
- kuchnię z jadalnią również z wyjściem na taras 

a także:
- dużą łazienkę
- toaletę
- spiżarnię
- gabinet 
- garderobę
- wiatrołap

 z dużego hallu zaplanowano schody na piętro, na którym znajdziemy:
- dużą sypialnię z wyjściem na taras
- dwa pokoje 
- łazienkę 
- toaletę
- pralnię
- małe pomieszczenie gospodarcze

Niewątpliwym atutem nieruchomości jest jej położenie ( dziesięć minut piechotą do centrum ), a także możliwość wykończenia według własnej aranżacji.

Miasto Myszków jest również położone w dogodnej odległości od aglomeracji śląskich. Dojazd do Katowic ok. 40 minut, do Częstochowy ok. 35 minut, do autostrady A1 też około 30 minut.

SERDECZNIE ZAPRASZAMY OSOBY ZAINTERESOWANE NA PREZENTACJĘ !!!



 

Nota prawna

Opis oferty zawarty na stronie internetowej sporządzany jest na podstawie oględzin nieruchomości oraz informacji uzyskanych od właściciela, może podlegać aktualizacji i nie stanowi oferty określonej w art. 66 i następnych K.C.

Szczegóły oferty

Symbol oferty MEG-DS-8830
Powierzchnia 388,00 m²
Powierzchnia użytkowa 285,00 m²
Powierzchnia działki 2 418 m²
Liczba pokoi 5
Rodzaj domu villa
Technologia budowlana ceramika porotherm
Standard
Stan prawny Własność
Okna nowe PCV
Balkon jest
Zagosp. działki częściowo zagospodarowana
Ukształtowanie działki płaska
Pokrycie dachu dachówka ceramiczna
Stan budynku do wykończenia
Podpiwniczenie tak
Ogrodzenie działki frontowe kute
Gaz tak - miejski
Woda jest
Dojazd droga utwardzona
Otoczenie zabudowa jednorodzinna
Odległość do komunikacji publicznej [m] 50 m
Tarasy taras duży
Prąd tak
Kanalizacja w ulicy

Pomieszczenia

Rodzaj kuchni aneks kuchenny - połączony z jadalnią
Typ łazienki bez wc, z oknem
Liczba łazienek 2
Liczba WC 2

Kalkulator kredytowy

PLN
%
Wysokość raty

Kalkulator kosztów

PLN
PLN
PLN
PLN
PLN
PLN
%
PLN
Podatek od czynności cywilno-prawnych
Taksa notarialna (opłata notarialna)
VAT od taksy notarialnej (opłaty notarialnej)
Wniosek do WKW
VAT od wniosku do WKW
Prowizja agencji nieruchomości
VAT od prowizji agencji nieruchomości
Wypisy aktu notarialnego - około
RAZEM (cena + opłaty)

Napisz do nas

Proszę wypełnić to pole
Proszę wypełnić to pole
Proszę wypełnić to pole
Proszę wypełnić to pole
Trwa wysyłanie...

Ta strona wykorzystuje pliki cookies w celach statystycznych oraz w celu dostosowania naszych serwisów do indywidualnych potrzeb klientów. Zmiany ustawień dotyczących plików cookie można dokonać w dowolnej chwili modyfikując ustawienia przeglądarki. Korzystanie z tej strony bez zmian ustawień dotyczących cookies oznacza, że będą one zapisane w pamięci urządzenia.

rozumiem